Roberto Lamera Architetto
Home
Progetti
Residenze,uffici e servizi
Riqualificazione urbana
Restauro
Concorsi
Progetti e incarichi in corso
Studio
Collaboratori
Curriculum
Progetti e lavori pubblicati
Pubblicazioni
Contatti
5 - 14
<
>
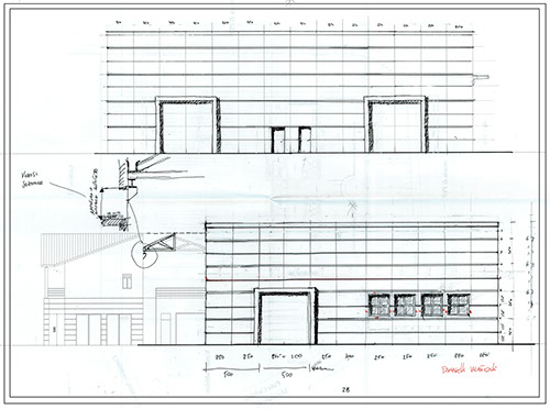
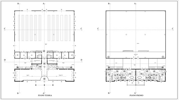
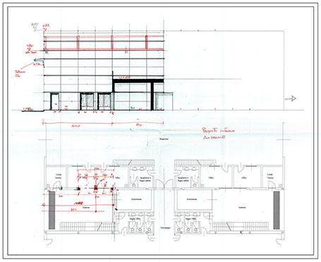
Realizzazione uffici e annesso magazzino ad
Antegnate (BG) anni 2007-2009.
Ritorna a progetti