Roberto Lamera Architetto
Home
Progetti
Residenze,uffici e servizi
Riqualificazione urbana
Restauro
Concorsi
Progetti e incarichi in corso
Studio
Collaboratori
Curriculum
Progetti e lavori pubblicati
Pubblicazioni
Contatti
1 - 6
<
>
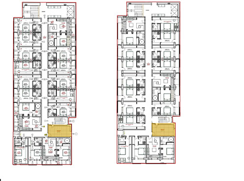
Progetto di massima per la riqualificazione
di un hotel a Poiana Marului
(Caras Severin-Romania)
anno 2011.
Ritorna a progetti