Roberto Lamera Architetto
Home
Progetti
Residenze,uffici e servizi
Riqualificazione urbana
Restauro
Concorsi
Progetti e incarichi in corso
Studio
Collaboratori
Curriculum
Progetti e lavori pubblicati
Pubblicazioni
Contatti
1 - 4
<
>
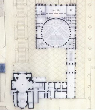
"Nuovo complesso parrocchiale nella diocesi di
Bergamo" commissionato dalla Conferenza
Episcopale Italiana nel 1999-2000 con
arch. Attilio Pizzigoni.
Ritorna a concorsi