Roberto Lamera Architetto
Home
Progetti
Residenze,uffici e servizi
Riqualificazione urbana
Restauro
Concorsi
Progetti e incarichi in corso
Studio
Collaboratori
Curriculum
Progetti e lavori pubblicati
Pubblicazioni
Contatti
10 - 12
<
>
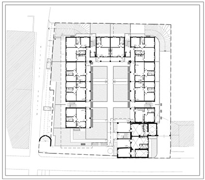
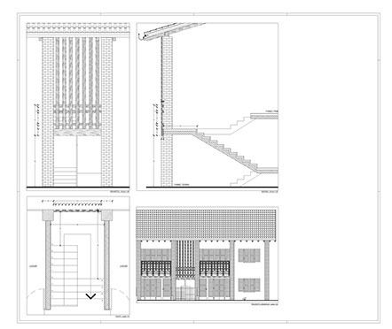
Realizzazione di un complesso residenziale
"ex cascina San Luigi" a Castrezzato (BS)
con l'architetto Sandro Bruschi anni 2002-2005.
Ritorna a progetti